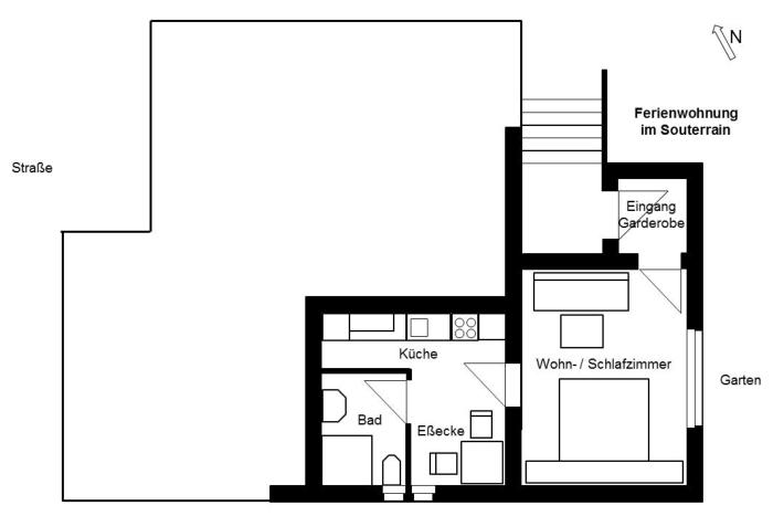
Ferienwohnung Renate Aschoff       Bühl Renate Aschoff    *    Schänzelstrasse 7b    *    77815 Bühl    *    +49 (0)7223 4815    *    kontakt@aschoff-buehl.de Die Ferienwohnung ist im Souterrain unseres  Wohnhauses auf der Gartenseite und hat  einen eigenen Eingang. Die ca. 30 m² große  Einzimmerwohnung mit separater Küche,  Dusche/WC und Garderobe ist ideal für den  Aufenthalt von 1-2 Personen. Im Wohn-  /Schlafzimmer, mit Blick in den Garten,  befindet sich eine Sitzecke und ein Doppelbett  mit getrennten Matratzen. Die kleine Küche ist  komplett eingerichtet und die Essecke bietet 2  Personen Platz. Im modernen Bad befindet  sich neben Waschbecken und WC eine  großräumige Duschkabine. Die Fenster in allen Räumen können zum Garten hin geöffnet  werden, die Verdunkelung im Wohn-/Schlafzimmer ist über einen Rollladen möglich.  Grundriß Ferienwohnung Separater Eingang zur Ferienwohnung